Architempore: lo studio di progettazione che crea spazi su misura

Architempore: lo studio di progettazione che crea spazi su misura

Nel panorama della progettazione contemporanea, Architempore si distingue come studio di progettazione e impresa di costruzioni capace di tradurre le esigenze quotidiane in spazi funzionali, accoglienti e riconoscibili. Attivo anche sul territorio della Martesana, lo studio, guidato dagli architetti Violetta Breda e Gianluca Ardiani, lavora da sempre su un equilibrio preciso tra estetica e funzionalità, considerando l’architettura come uno strumento per migliorare il benessere delle persone.

La visione progettuale di Architempore

La progettazione, per Architempore, parte dall’ascolto e dall’analisi dei comportamenti per creare spazi su misura, belli da vivere, confortevoli e realmente performanti.
Ogni scelta nasce da una visione integrata che tiene insieme ergonomia, materiali, luce e scenari d’uso. A distinguere lo studio è l’animo profondamente pratico: un approccio fondato sulla vicinanza al cantiere, con la consapevolezza che la buona architettura debba confrontarsi costantemente con la realtà costruttiva. Per questo motivo, il budget e i vincoli realizzativi non vengono considerati ostacoli tardivi, ma elementi cardine integrati fin dalle prime fasi del lavoro.
Per lo studio, ristrutturare non è solo costruire, ma dare forma al modo di vivere di chi abiterà quello spazio, trasformando ogni intervento in un’opportunità per aumentare efficienza e comfort abitativo, con la certezza della fattibilità tecnica ed economica.

Il Metodo Architempore: dall’idea al cantiere

Per garantire trasparenza e una gestione senza stress, lo studio applica un metodo solido e collaudato (il “Metodo Architempore”) che accompagna il cliente in ogni fase della trasformazione, offrendo un unico interlocutore dedicato:

  • Fase preliminare: Il punto di partenza è l’ascolto attivo. Si effettua un sopralluogo tecnico, si analizzano i vincoli dell’immobile e si raccolgono le necessità profonde del cliente per definire il perimetro del progetto.
  • Fase di concept: Le idee prendono forma attraverso moodboard, layout funzionali e lo studio della luce. In questa fase si definisce l’identità stilistica e l’atmosfera che lo spazio dovrà trasmettere.
  • Fase definitiva e tecnica: Si entra nel dettaglio esecutivo. Vengono definiti impianti, domotica, materiali e finiture. Lo studio gestisce integralmente la parte burocratica e le pratiche edilizie necessarie.
  • Fase realizzativa: È il momento del cantiere. La direzione lavori e il coordinamento costante delle maestranze assicurano che il progetto venga eseguito a regola d’arte, rispettando rigorosamente tempi e budget concordati.

Caso studio: il progetto dello studio Architempore a Cernusco

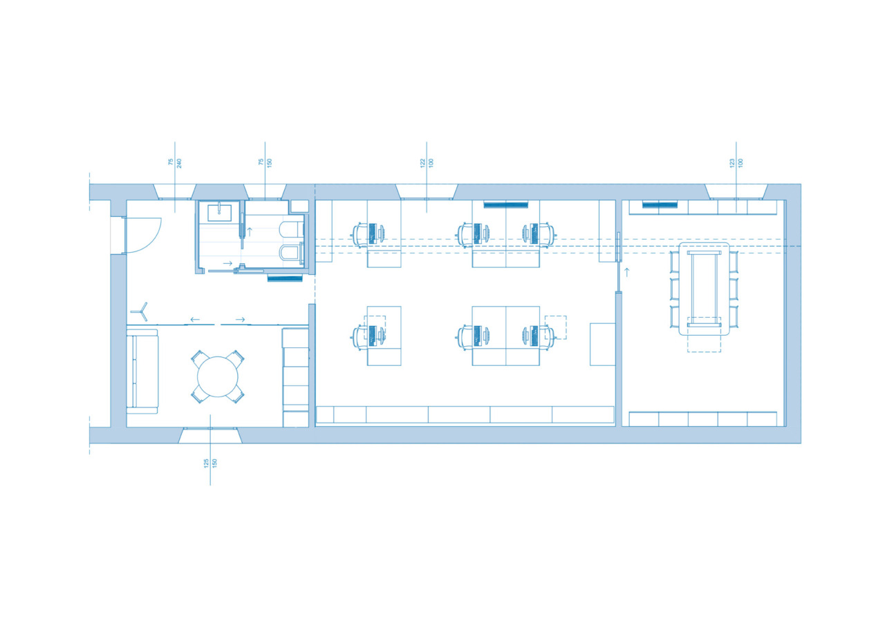
La sede operativa di Cernusco sul Naviglio, ultimata a marzo 2025, rappresenta la sintesi perfetta della filosofia dello studio. L’intervento ha trasformato uno spazio direzionale in un ambiente di lavoro moderno, progettato per favorire la concentrazione e il benessere creativo del team. Ogni dettaglio è stato studiato per comunicare l’approccio di Architempore: un luogo che non è solo un ufficio, ma un manifesto vivente delle capacità progettuali e tecniche dello studio.

Atmosfere e funzionalità: l’anima degli spazi

L’ingresso e la sala riunioni polifunzionale. L’area di accoglienza è definita da una scenografica vetrata fumé Albed a tutta altezza. Questo elemento mobile permette di trasformare istantaneamente lo spazio, da sala riunioni riservata e professionale a un’area break luminosa e conviviale, garantendo privacy senza interrompere la fluidità visiva dello studio.
L’area operativa: il cuore creativo. Il cuore pulsante dello studio è un open space dinamico che ospita sei postazioni. Qui domina il bianco e la luce naturale, scaldati dal pavimento effetto legno di Parital Group. L’illuminazione tecnica, affidata ai binari Ideal Lux e alle lampade Linea Light, è studiata per garantire il massimo comfort visivo durante il lavoro di precisione.
La cucina e il bagno: spazi di benessere. Anche i locali di servizio riflettono la cura del dettaglio: una cucina compatta nei toni beige si unisce a un bagno dal carattere deciso, dove i rivestimenti tridimensionali di Ragno e la rubinetteria Mina creano un ambiente raffinato. Il tocco finale è dato dal radiatore Android di Antrax, che trasforma un elemento funzionale in un oggetto di design scultoreo.
La sala di rappresentanza. L’ufficio si conclude con una sala meeting dedicata al dialogo con i clienti, impreziosita dalla carta da parati materica di Jannelli & Volpi. Questa stanza è pensata per ispirare un ambiente confortevole dove i campionari materiali sono a portata di mano e i nuovi progetti prendono vita in un’atmosfera accogliente e professionale.

Dalla gestione del budget alla direzione del cantiere, l’obiettivo dello studio rimane costante: offrire una progettazione senza imprevisti, dove il valore dello spazio si riflette nel benessere di chi lo abita.

Per maggiori informazioni, visitare il sito Architempore o contattare i progettisti al numero 02.95781292 o via mail: info@architempore.com